EUmies Award Nominee 2026

~

EUmies Award Nominee 2026 ~

Three object apartment

The renovation of the first floor flat of this modernist building upgrades the interior space to an up-to-date apartment, whilst also being a study on unfinished architecture. On this project, together with the clients, we explored and experimented with an aesthetic fully tailored to the existing qualities of the site, as acquired.

Located in a highly residential area, the building has been designed following modernist architectural principles. It was originally split in three different properties, one per floor, with the common area of Pilotis on the ground floor. The building had been barely appealing to developers or private owners and was left abandoned for the past thirty years. The family who bought the first floor perceived it as a ‘dwelling canvas’, both on the first level and Piloti's level. Pilotis are usually used as a parking space in the city of Athens. In this case it consists of a private covered area empty of program, therefore available to be adapted by the users ad-hoc.

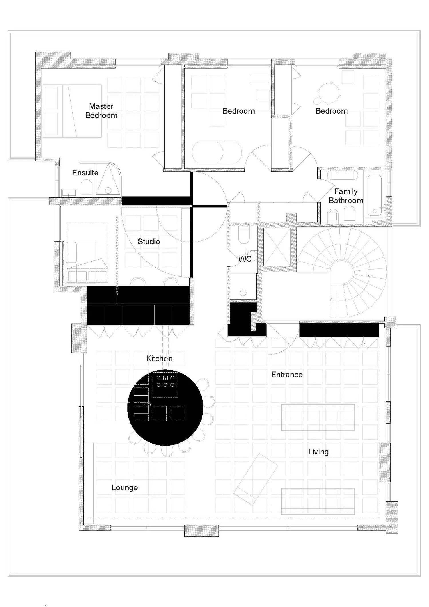
The flexibility provided by the Pilotis inspired the dwelling on the first floor. The clients required a home with maximum flexibility and openness. Our design response to this programme was to strip back the apartment to its bones, revealing the external shell, the waffle ceiling and introducing three medium scale functional objects.

A round kitchen island forms an amalgamation of a worktop and a dining table, inviting social cooking and gatherings. The neat storage block contains the kitchen pantry, cloak, wardrobes and utilities. The cross, a corridor partition made of two large pivot panels and two pivot doors rotating around one centre, brings flexibility to the adjacent rooms. It forms divisions between private and public areas and is a mechanism which unifies or separates the different compartments of the house, depending on the family’s needs.

During the construction stage, hidden layers were revealed and celebrated, in a process akin to archaeology. Concrete ceiling waffles have been carefully exposed and restored in all rooms. The existing marble floor was removed to be repurposed as terrazzo aggregate. The marble pattern within the terrazzo floor was not arbitrarily placed: together with the clients we broke the salvaged terrazzo panels in-situ, in selected locations, retaining the fragments as they fell - freezing the moment of stone breaking into pieces. The cementitious mortar found behind the existing tiled walls in the bathrooms was retained as the final wall finish. Neutral colours as well as all finishes on floors, walls and ceilings, were chosen to soften the hard nature of the building fabric.

Project Data

Year 2023

Location Athens, Greece

Type Residential

Architect Elina Loukou

Light designer Eszter Hanzseros

Collaborators Yorgos Pantazis

EU Mies Awards 2026 Nominee

Greek Architecture Award 2024

BestNew Architecture in an Existing Building

Selected Press

Wallpaper Magazine

Divisare

Domes Issue 170

Archdaily

Baunetz ID

Baunetz Wissen, Elledecor Italia, PLOT, AREA, Archello

Next
Next

Xmas 360 Pop Up Bar SNFCC